Dom Herby, Krótka
Herby Pokaż na mapie ›
Odświeżone: Poniedziałek, 05 Styczeń, 2026 17:21
320 000 zł
3678 zł/m2
Szczegóły ogłoszenia
- Kategoria: Domy / Sprzedaż
- Powierzchnia:87 m2
- Liczba pokoi:3 pokoje
- Pow. działki:1692 m2
- Rynek:Wtórny
- Rok budowy:1958
- Sprzedaż:Pośrednik
- Cena: 320 000 zł / 3678 zł/m2
Opis oferty
BMC Nieruchomości prezentuje: Dom jednorodzinny w miejscowości Herby, gm. Herby, pow. lublinieckiOpis nieruchomości:
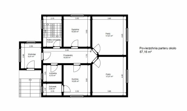
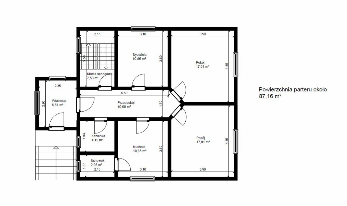
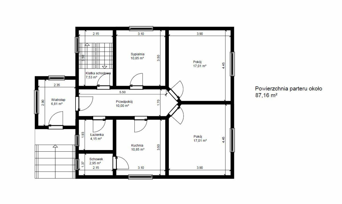
Dom jednorodzinny o powierzchni użytkowej 87,16 m², wybudowany w 1958 roku z szarego pustaka i czerwonej cegły.
Dach dwuspadowy, konstrukcja drewniana, pokryty betonową dachówką.
Strop drewniany, okna i drzwi drewniane starego typu (okna skrzynkowe).
Dom składa się z następujących pomieszczeń:
• Wiatrołap- 6,81m2
• Korytarz-10m2
• 3 pokoje po ok. 17m2 i 10,85m2
• Kuchnia- 10,85m2
• Spiżarnia-2,95m2
• Łazienka- 4,15m2
Dodatkowo: otwarte poddasze do ewentualnej adaptacji, piwnica pod całością budynku, działka ogrodzona z budynkiem gospodarczym i kojcem dla psów.
W 2022 roku przeprowadzono częściową wymianę instalacji elektrycznej oraz wodno-kanalizacyjnej, co stanowi znaczący krok w kierunku modernizacji budynku.
Atuty nieruchomości:
• Atrakcyjna cena z potencjałem aranżacyjnym - idealna baza do remontu i dostosowania do własnych potrzeb
• Budynek w całości podpiwniczony - dodatkowa przestrzeń użytkowa
• Piec na ekogroszek firmy Hegan z 2022 roku - nowoczesne, ekonomiczne ogrzewanie
• Działka z własną studnią oraz ogrodzeniem
• Budynek gospodarczy i kojec na dwa psy - dodatkowe funkcjonalności
Działka:
•ogrodzona
• wymiary: szer. 24,40m x 69m
Media:
• Prąd
• Siła
• Wodociąg
• Kanalizacja
• Gaz w drodze
• Studnia głębinowa (10 m) na działce
Lokalizacja:
Komunikacja:
Dogodna lokalizacja w pobliżu drogi krajowej nr 46 (trasa Opole-Częstochowa), co zapewnia szybki i komfortowy dojazd do okolicznych miast.
Infrastruktura:
W bliskim sąsiedztwie znajdują się:
• sklepy
• szkoła
• kryty basen
• siedziba Gminy Herby
Okolica:
Spokojne, zielone otoczenie w sąsiedztwie lasów - idealne miejsce dla osób ceniących naturę i prywatność.
Zadzwoń już dziś i umów się na prezentację!
Biuro Nieruchomości BMC z przyjemnością odpowie na wszelkie pytania dotyczące tej oferty.
Koszty ponoszone przez Kupującego przy zakupie nieruchomości:
Prowizja pośrednika: 3% + VAT (czyli 3,69% brutto, nie mniej jak 4.000 złotych) od ceny transakcyjnej - za obsługę transakcji przez biuro nieruchomości
Koszty notarialne i sądowe: taksa notarialna, opłata za wniosek do księgi wieczystej, wypisy aktu notarialnego,
Podatek PCC: 2% wartości transakcji.
Numer oferty: 353162
Sprawdź zainteresowanie tym ogłoszeniem
Wyświetlenia
Data dodania
Ostatnio widziany
Obserwujących
Wysłane zapytania
Odsłony telefonu
Powiadom o podobnych ogłoszeniach
Lokalizacja: Herby
Kategoria: Nieruchomości » Domy » Sprzedaż
Cena: od 272000 zł do 368000 zł Powierzchnia : od 74 m2 do 100 m2
Chcę otrzymywać powiadomienia o nowych ofertach
- Wypromuj ogłoszenie
- Zgłoś naruszenie
- Drukuj ulotkę
- Edytuj/usuń ogłoszenie
- Udostępnij ogłoszenie
- Dodaj na Facebook






























